Ir al contenido
VIVIENDA
NURIA Y JAVIER
Buscar por:
Buscar
Buscar
HOME
PLANOS
DISEÑO
Alternar menú
COCINA
SALÓN
DORMITORIO1
ILUMINACIÓN
PINTURA
CLIMATIZACIÓN
Alternar menú
TERMOSTATO PROGRAMADOR
PRODUCCIÓN: AEROTERMIA, SUELO RADIANTE Y FANCOIL
ESQUEMAS
DOMÓTICA
Alternar menú
MANUAL DOMÓTICA
WiFi vs Zigbee
PROYECTO DOMÓTICA PARA ILUMINACIÓN
07.02 PROYECTO DOMÓTICA ILUMINACIÓN 2
07.03 PROYECTO DOMÓTICA ILUMINACIÓN 3
OTROS
Alternar menú
VIDEOPORTERO
LAVAVAJILLAS
VIVIENDA
NURIA Y JAVIER
Buscar por:
Buscar
Buscar
Main Menu
HOME
PLANOS
DISEÑO
Alternar menú
COCINA
SALÓN
DORMITORIO1
ILUMINACIÓN
PINTURA
CLIMATIZACIÓN
Alternar menú
TERMOSTATO PROGRAMADOR
PRODUCCIÓN: AEROTERMIA, SUELO RADIANTE Y FANCOIL
ESQUEMAS
DOMÓTICA
Alternar menú
MANUAL DOMÓTICA
WiFi vs Zigbee
PROYECTO DOMÓTICA PARA ILUMINACIÓN
07.02 PROYECTO DOMÓTICA ILUMINACIÓN 2
07.03 PROYECTO DOMÓTICA ILUMINACIÓN 3
OTROS
Alternar menú
VIDEOPORTERO
LAVAVAJILLAS
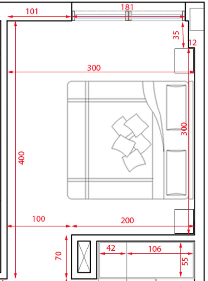
DORMITORIO 1